Status update I: Renovation of the home kitchen
The donation amount of 5.450 Euros has already been transferred in full to the foundation in Colombia (without any deduction for administrative costs).
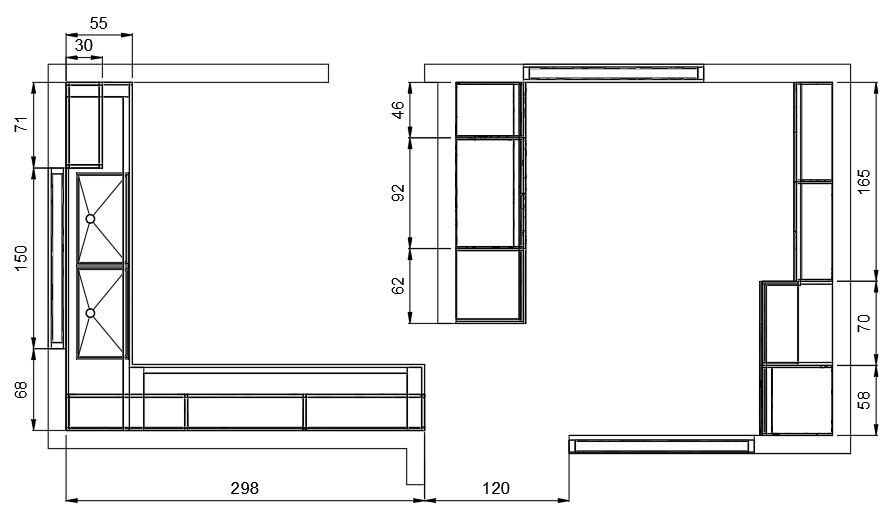
Our on-site coordinators have obtained preliminary cost estimates, and the renovation work has already been commissioned. A kitchen builder has been awarded the contract and will donate his working hours as well as the built-in cabinets for the benefit of the project. This way, the entire donation amount can be invested in the kitchen inventory. Here are some impressions of the submitted building plans.
Thanks to an additional local donation of 200 euros, a deposit for the initial work has already been made. A temporary kitchen was constructed in the outdoor area of the foundation's home to ensure that meals can still be served during the renovation phase of the main kitchen.
The renovation work on the main kitchen is also progressing rapidly in parallel.
Additionally, our on-site coordinators have already been able to purchase the first urgently needed kitchen utensils (such as cooking pots) from a wholesaler at very favorable prices.
More updates on the project progress will follow soon...
